















Дом по проекту «ИБ-02»
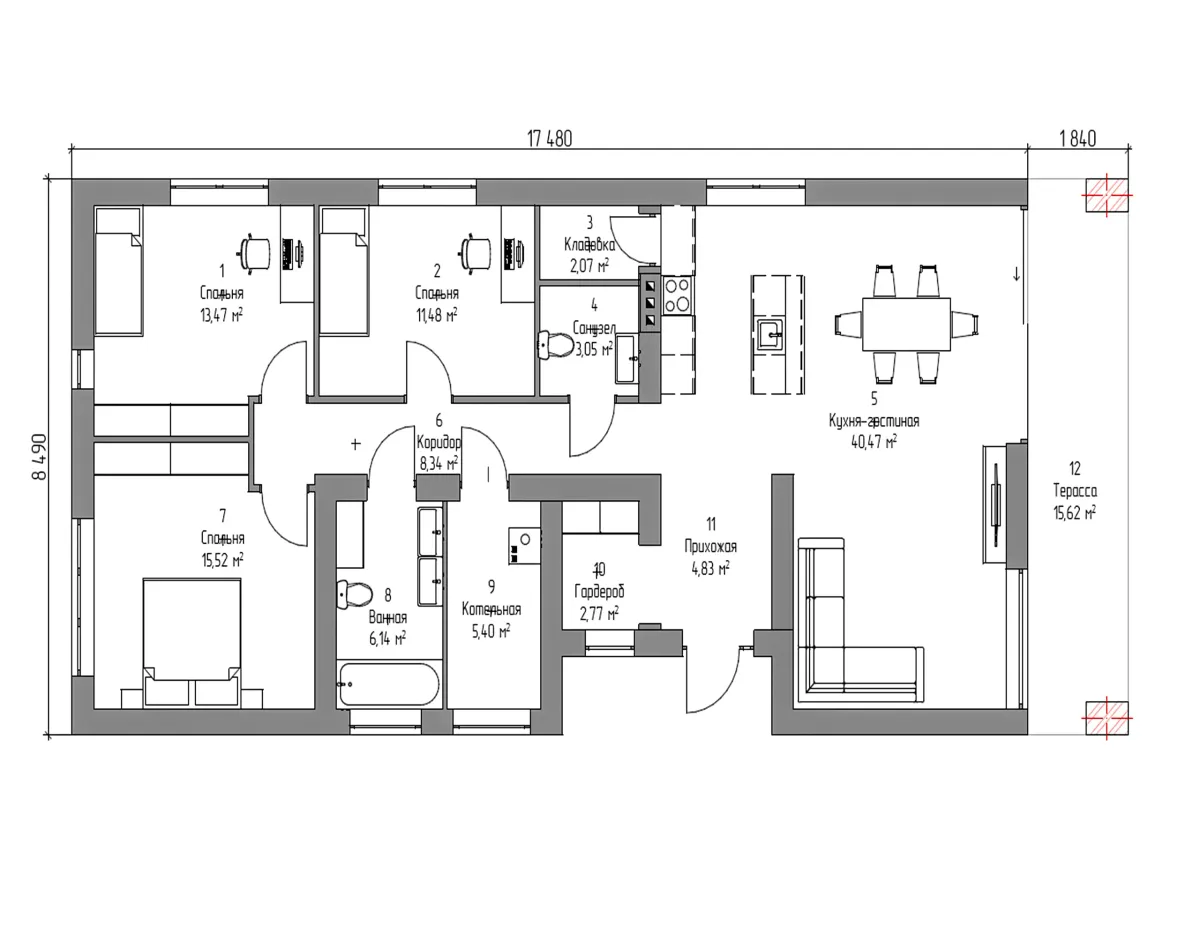
Блочный домПроект блочного дома «ИБ-02» — просторный двухэтажный дом площадью 134 м², построенный по блочной технологии (газобетон). Планировка: 3 спальни, 2 санузла, два этажа. Срок строительства — 2 месяца. Преимущества проекта: два санузла для комфортного проживания, продуманная планировка. Строим в Москве и Московской области с гарантией качества.
План дома

Комплектации и цены
Основание плиточного фундамента «Подушка» — песок
Утепление фундамента — пенополистирол 50 мм
Ростверк и плита (монолит) — арматура 12 мм
Фундаментная плита (монолит) — бетон В25, марка М350
Устройство гидроизоляции по верху фундамента — «Технониколь»
Армирование стен — базальтовая сетка для связки облицовочного кирпича
Внешние стены — газобетонные блоки YTONG 400×250×625 мм, D500
Внутренние несущие конструкции — газобетон YTONG 250×250×625 мм, D500
Внутренние перегородки — газобетон YTONG 150×250×625 мм, D500
Устройство оконных и дверных перемычек — ЖБИ
Межэтажное перекрытие (монолит) — бетон В25, марка М350
Стропила — строганная доска 45×190 мм
Контробрешётка — брус 40×40 мм
Обрешётка — доска 20×150 / 25×100
Затяжка стропил — оцинкованная шпилька М12
Металлочерепица или кликфальц 0,5 мм, полный комплект с доборными
Свесы крыши — пластиковые софиты
Гидроизоляция «Изоспан» АМ
Утепление — минеральная вата 200 мм
Пароизоляция «Изоспан В» внахлёст с проклейкой стыков DELTA
Отливы — металлические
Облицовочный кирпич — RAL по выбору заказчика
Имитация бруса — Карельский профиль ГОСТ, заводская покраска SYMPHONY
Фасадная штукатурка — RAL по выбору заказчика
Окна ПВХ двухкамерные REHAU 70 мм, белые
Подоконники — пластик белый
Входная металлическая, утеплённая с терморазрывом (Termo Door)
Террасная доска «Terradeck», цвет: Антрацит / Венге
Входные ступени — «Terradeck»
Водосточная система — ПВХ
Снегозадержатели — металлические трубчатые
Отделка цоколя — облицовочный кирпич
Основание «Подушка» — песок
Утепление — пенополистирол 50 мм
Армированная сетка — арматура 10 мм
Монолит — бетон В25, марка М350
Похожие проекты
Наши работы
Видео отзывы

Отзыв о СК IS STROI

Отзыв о СК «ИС СТРОЙ»

Отзыв о компании IS STROI

Отзыв о компании ИС СТРОЙ

Отзыв — Наро-Фоминск

Отзыв — СНТ СОЮЗ

Отзыв о компании IS STROI

Отзыв о компании Is Stroi

Отзыв — Александр и Мария

Отзыв о компании «ИС СТРОЙ»

Отзыв — каркасный дом

Отзыв — ИС СТРОЙ

Отзывы о компании ИС СТРОЙ

Отзывы — ИС СТРОЙ

IS STROI — отзывы

«IS STROI» — отзывы

«ИС СТРОЙ» — отзывы

ИС СТРОЙ — отзывы

Сдача дома «Надежда»

Проект дома «Фантазия»















































































































































