





Дом по проекту «ИС-37 Фантазия-2»
Каркасный домПроект каркасного дома «ИС-37 Фантазия-2» — большой двухэтажный дом площадью 185 м², построенный по каркасной технологии. Планировка: 3 спальни, 2 санузла, два этажа. Срок строительства — 2 месяца. Преимущества проекта: два санузла для комфортного проживания, продуманная планировка. Строим в Москве и Московской области с гарантией качества.
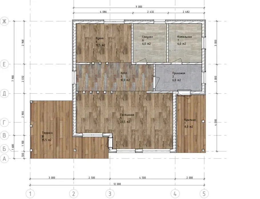
План дома

Комплектации и цены
Винтовые сваи 108×2500 мм, оголовок 200×200 мм окрашенный
Обвязка фундамента 140×140 брус/пакет досок ёлочным соединением
Устройство гидроизоляции — два слоя рубероида
Крепление основания к фундаменту: саморез «глухарь» 8×60 мм
Доска сухая строганная камерной сушки 45×140
Каркас внутренних стен 45×140 / 45×90
Все отделочные материалы камерной сушки
Обработка антисептиком цокольного перекрытия первого этажа
«Изоспан» В — пароизоляция, «Изоспан» А — гидроизоляция
Гидроизоляция кровли: «Изоспан» АМ
Пароизоляция монтируется внахлёст с проклейкой стыков скотчем DELTA
Доска сухая строганная с четырёх сторон 40×190
Лаги: доска 45×195 мм камерной сушки, на ребро с шагом 590 мм
Черновой пол: доска камерной сушки 40×90 мм
Фанера 18 мм поверх чернового пола
Металлочерепица 0,45 мм, полный комплект с доборными элементами
Свесы крыши: пластиковые софиты
Отливы: металлические
Стропильные доски 45×140
Контробрешётка 40×40, обрешётка доски 20×90
Связка стропил оцинкованной стальной шпилькой М12
URSA TERRA 34 PRO — наружные стены 150 мм
Внутренние несущие стены: 100 мм
Внутренние перегородки: 100 мм
Потолок: 150 мм, цокольное перекрытие: 150 мм
Бруски 40×40
Обшивка стен: фасадная плитка Hauberk от Технониколь, OSB 9 мм
Обрешётка по внутренним стенам 20×50×3000 мм
Обшивка стен: прижимная обрешётка
Обшивка с/у и котельной: прижимная обрешётка
Потолок: прижимная обрешётка
Полы: фанера 18 мм
Окна ПВХ двухкамерные REHAU 60 мм, белые с 2-х сторон
Подоконники пластиковые белые
Монтажный шов обрабатывается герметиками СТИЗ-А и СТИЗ-В
Отливы 50 мм, наружные наличники окон 100×50 мм: металлические
Входная: металлическая/МДФ-панель, утеплённая с терморазрывом (Termo Door)
Пластиковая террасная доска (цвет: Антрацит / Венге)
Лестница наружная деревянная (без перил) — временная
Опорный столб и перила на крыльце и террасе — деревянные
Водосточная система — пластик
Похожие проекты
Наши работы
Видео отзывы

Отзыв о СК IS STROI

Отзыв о СК «ИС СТРОЙ»

Отзыв о компании IS STROI

Отзыв о компании ИС СТРОЙ

Отзыв — Наро-Фоминск

Отзыв — СНТ СОЮЗ

Отзыв о компании IS STROI

Отзыв о компании Is Stroi

Отзыв — Александр и Мария

Отзыв о компании «ИС СТРОЙ»

Отзыв — каркасный дом

Отзыв — ИС СТРОЙ

Отзывы о компании ИС СТРОЙ

Отзывы — ИС СТРОЙ

IS STROI — отзывы

«IS STROI» — отзывы

«ИС СТРОЙ» — отзывы

ИС СТРОЙ — отзывы

Сдача дома «Надежда»

Проект дома «Фантазия»

































































































































